Fontainebleau (77300) Fontainebleau, Place de l'étape, immeuble à usage mixte d’habitation et professionnel. Boutique en RDC actuell
Situé Place de l’Étape, en plein cœur de Fontainebleau, cet immeuble de caractère à usage mixte habitation et commercial bénéficie d’un emplacement premium au sein d’un secteur commerçant très recherché.
Il développe une superficie totale d’environ 268 m² et offre un fort potentiel de valorisation grâce à un projet de transformation déjà validé.
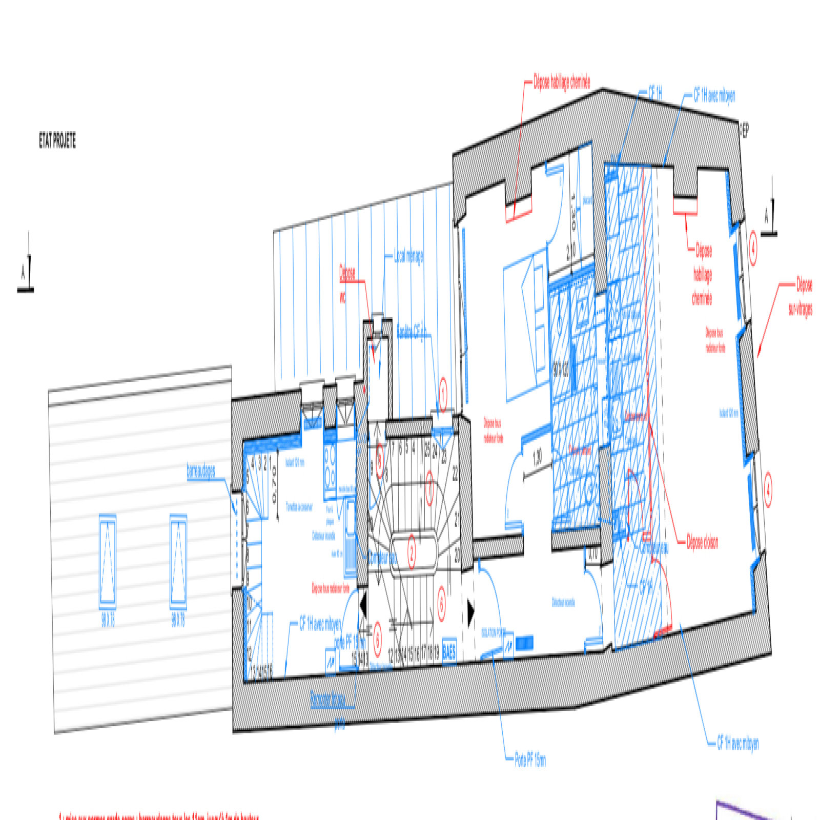
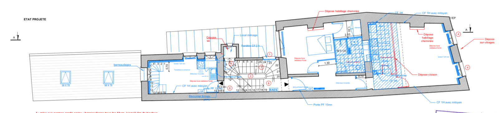
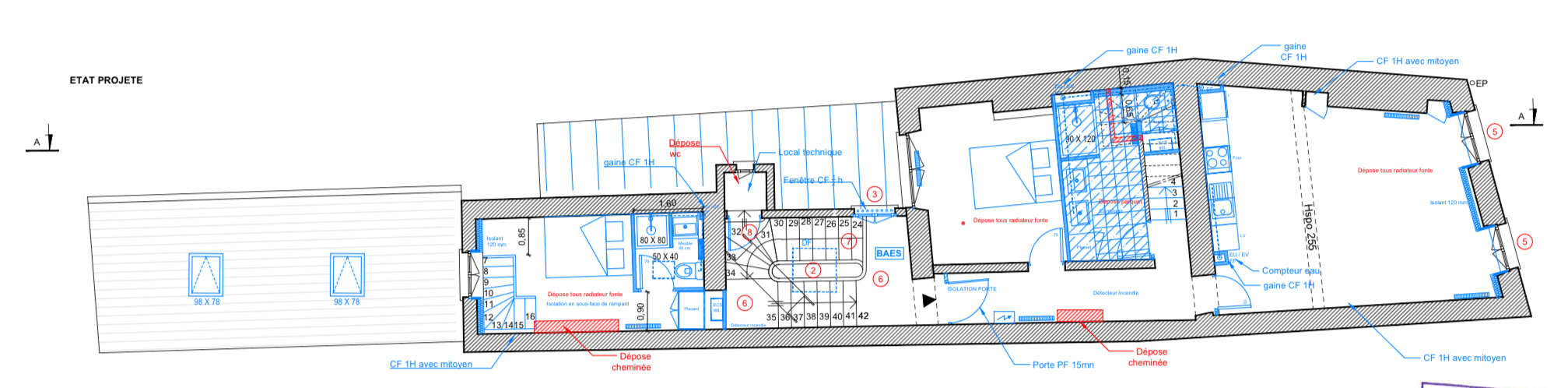
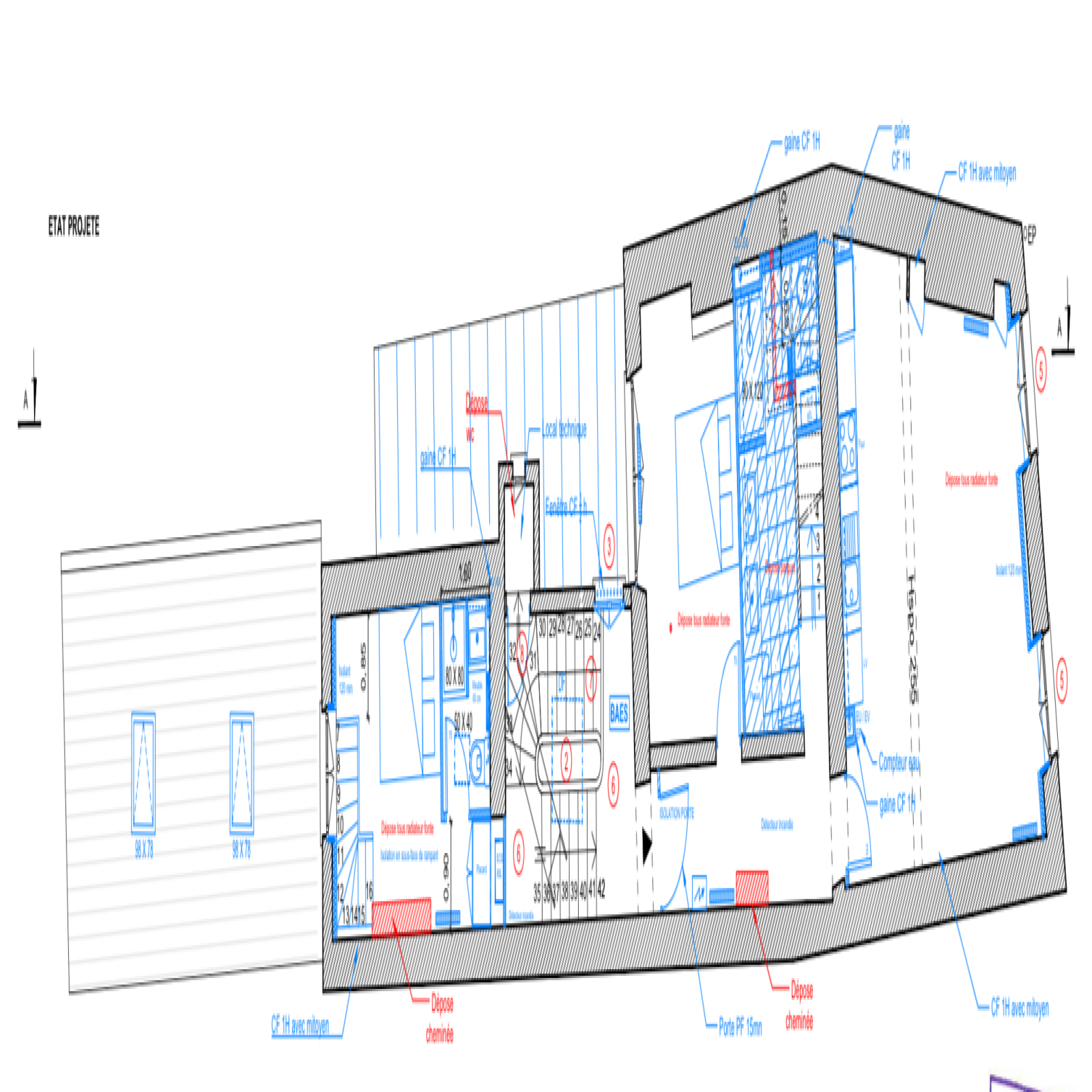
Le bien : Immeuble mixte habitation / commerce. Cave voûtée. Grenier aménageable d’environ 31 m2 carrez. Beaux volumes et hauteurs sous plafond.
Partie habitation (actuelle), environ 173 m²:
- Rez-de-chaussée : entrée indépendante desservant les étages. Local poubelles
- 1er étage : cuisine, deux bureaux, entrée et couloir.
- 2e étage : deux bureaux, entrée / couloir, débarras, WC.
Grenier au-dessus. Cave voûtée en sous-sol
Projet immobilier validé avec Déclaration Préalable accordée en janvier 2025 pour la création de 3 logements :
F2 en duplex (1er / 2e étage) environ 22,63 m². + F2 (1er étage) environ 55,40 m². + F4 en duplex (2e / 3e étage) environ 86,80 m².
Étude d’aménagement et chiffrage des travaux disponibles.
Commerce en place, environ 95 m2 loué depuis 18 ans.
Les caractéristiques Du bien
Les infos Financières
Les infos Energetiques
Montant estimé des dépenses annuelles d'énergie pour un usage standard est compris entre 3 330 € et 4 570 € . Prix moyens des énergies indexés sur les années 2021, 2022 et 2023 (abonnements compris).
Localisation Du bien
-
Commerces et santé
-
Loisirs
-
Ecoles
-
Transports
-
Pratique
Ce site est protégé par reCAPTCHA, les Politiques de Confidentialité et les Conditions d'Utilisation de Google s'appliquent.
Détails des diagnostics énergétiques
Montant estimé des dépenses annuelles d'énergie pour un usage standard est compris entre 3 330 € et 4 570 € . Prix moyens des énergies indexés sur les années 2021, 2022 et 2023 (abonnements compris).
