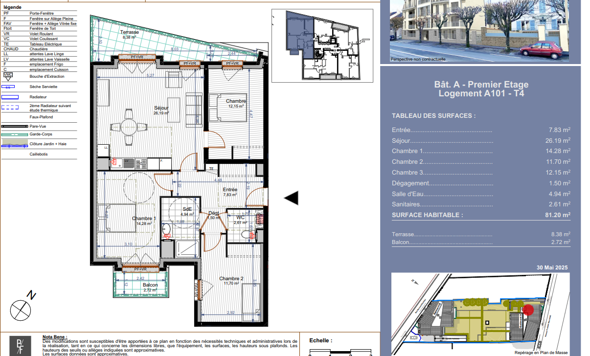
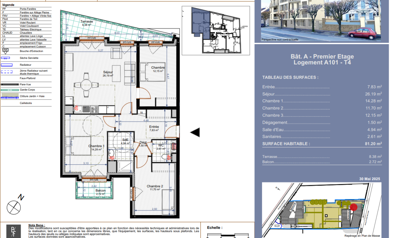
Avon (77210) F4 résidence L'Ecrin
A AVON, 10 avenue Franklin Roosevelt, découvrez l’Ecrin, une résidence intimiste de 36 appartements, répartis sur 2 bâtiments de 3 étages avec ascenseur pour un confort optimal.
Ce programme propose des logements du F2 au F4, la plupart avec balcon, terrasse ou jardin privatif.
Vous disposez d’une place de stationnement en sous-sol inclus pour chaque appartement du F2 et de deux places de stationnement à partir du F3.
Prix F4 à partir de 392 000 €
Possibilités de F2 et F3, n'hésitez pas à nous consulter pour plus d'informations.
Les caractéristiques Du bien
Les infos Financières
Ce site est protégé par reCAPTCHA, les Politiques de Confidentialité et les Conditions d'Utilisation de Google s'appliquent.
Détails des diagnostics énergétiques
