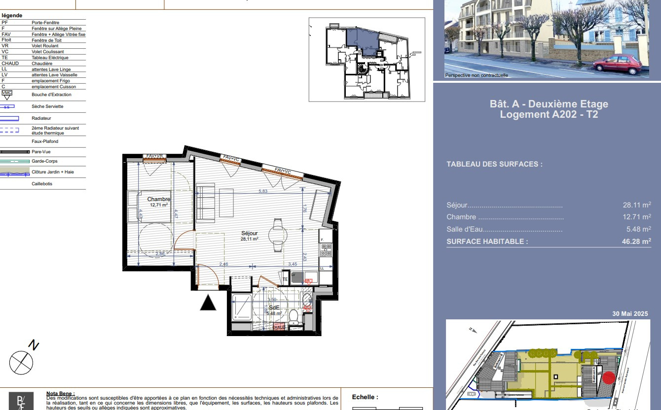
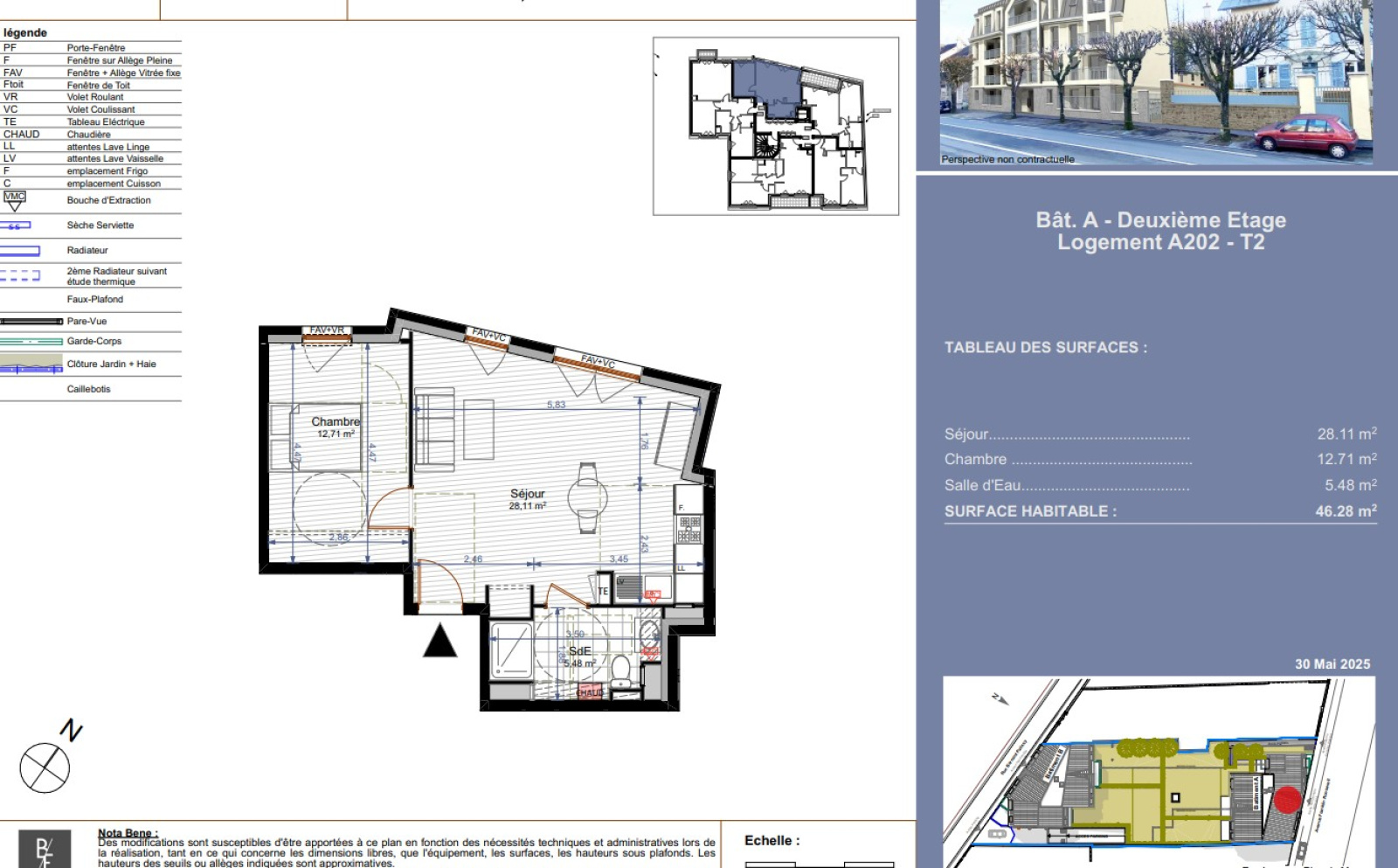
Avon (77210) F2 résidence L'Ecrin.
A AVON, 10 avenue Franklin Roosevelt, découvrez l’Ecrin, une résidence intimiste de 36 appartements, répartis sur 2 bâtiments de 3 étages avec ascenseur pour un confort optimal.
Ce programme propose des logements du F2 au F4, la plupart avec balcon, terrasse ou jardin privatif.
Vous disposez d’une place de stationnement en sous-sol incluse pour chaque appartement du F2 et de deux places de stationnement à partir du F3.
Prix F2 à partir de 225 000 €
Possibilités de F3 et F4, n'hésitez pas à nous consulter pour plus d'informations.
Les caractéristiques Du bien
Les infos Financières
Ce site est protégé par reCAPTCHA, les Politiques de Confidentialité et les Conditions d'Utilisation de Google s'appliquent.
